Skip to primary content

Our Net-Zero House

Building a House to the DoE's Zero Energy Ready Homes standards

Our Net-Zero House

Main menu

  • About
  • Beginning
  • What is a Net-zero House
  • Blog
  • Links
  • Floor Plans
  • Site Plan

Floor Plans

Here is the floor plan.

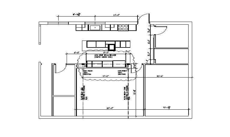
First Floor Plan

first-floor-updated-jpeg

 

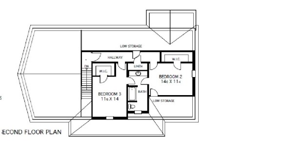
 Second Floor Plan

second-floor-plan-updated-jpeg

 

Share this:

  • Share on X (Opens in new window) X
  • Share on Facebook (Opens in new window) Facebook
Like Loading...
Blog at WordPress.com.
  • Subscribe Subscribed
    • Our Net-Zero House
    • Already have a WordPress.com account? Log in now.
    • Our Net-Zero House
    • Subscribe Subscribed
    • Sign up
    • Log in
    • Copy shortlink
    • Report this content
    • View post in Reader
    • Manage subscriptions
    • Collapse this bar
 

Loading Comments...
 

    %d